Zoning Process
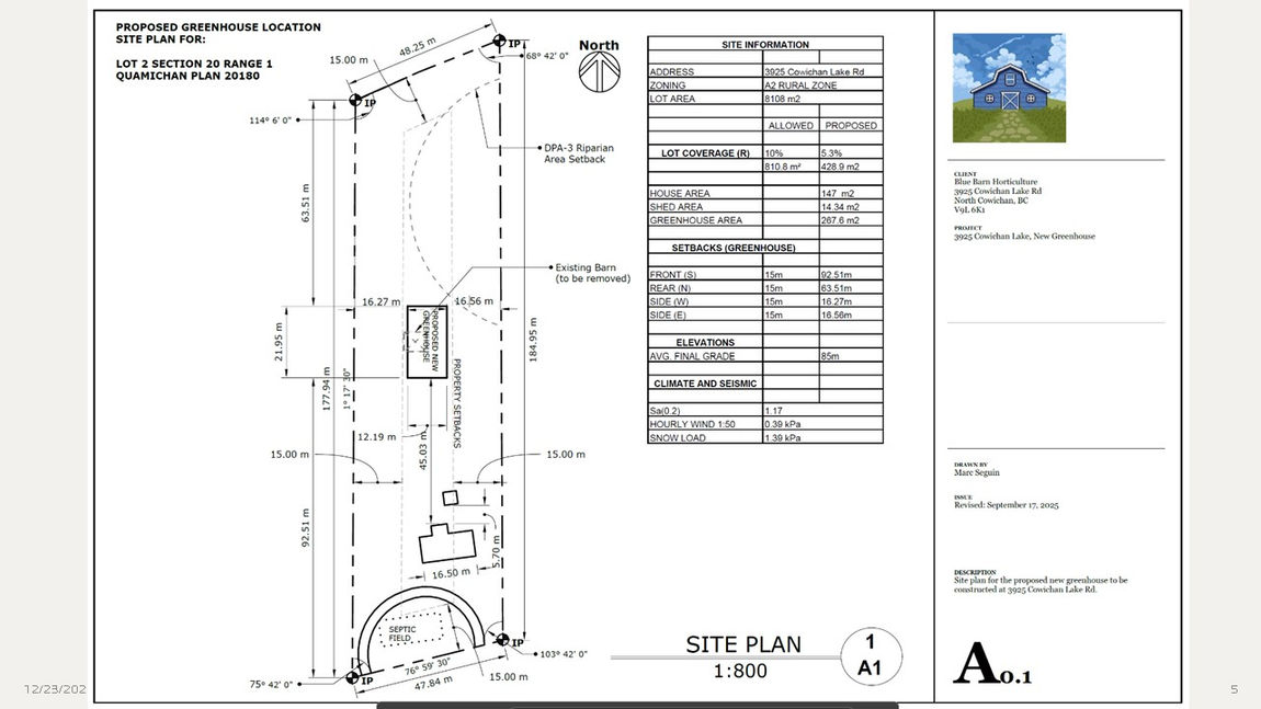
We’re applying for a site-specific zoning amendment to allow a small, purpose-built non-soil-based greenhouse on our ALR property at 3925 Cowichan Lake Road. The greenhouse we’re proposing is approximately 40’× 72’ (2880 ft2), sized to fit responsibly within the usable area of our property while keeping the overall footprint modest.

This zoning amendment step is required because non-soil-based greenhouse production is treated differently than typical field or soil-based agriculture, and we want the project reviewed clearly and transparently through the proper process. We’re choosing a concrete-based greenhouse foundation rather than a soil-based greenhouse because it supports higher-technology greenhouse options while still keeping the use fundamentally agricultural and greenhouse-based (not a warehouse).
Why we Built This Website
We created this site as part of our public engagement and to make project information easy to find in one place. We’re also reaching out directly to neighbours because we want to have respectful, two-way conversations early, before the formal public hearing stage.
Timeline

1
Neighborhood Open House
January 2026
We’ll be hosting an open house in the New Year for neighbours and community members to learn more, ask questions, and share feedback in a low-pressure setting.
2
Public Hearing
2026
A public hearing will be scheduled by the Municipality at a future date. This is the formal opportunity for residents to provide input to Council.
How to participate: You’ll be able to submit written comments in advance and/or speak at the hearing.














